222 m²

Ankkuritie 1, Kelloniemi, Kuopio

Pinta-ala
222 m²
Toimitilan tyyppi
Toimistotila
Kaupunginosa
Kelloniemi
Kaupunki
Kuopio

Toimistohotelli

Rakennamme uutta toimistotilaa!

Weston toimitiloissa on paraikaa sisäinen saneeraustyö meneillään.

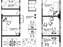
Saneerattava kokonaisala on n. 222 m² ja pääset mukaan suunnittelemaan yrityksellesi juuri sellaisen toimistokokonaisuuden, mikä vastaa tilatarpeitanne ja vuokrattavia neliöitä.

Voit vuokrata alkaen yhden n. 10 m² työhuoneen tai sopivan tilaratkaisun aina +200 m² saakka. Neuvotellaan ja suunnitellaan yhdessä sopiva kokonaisuus.

Varastotilaa katutasossa

Samassa kiinteistössä on katutasossa juuri valmistuneita varastotiloja (3-10 m² varastokopit).

Kaikki muut fasiliteetit on jo valmiiina, kuten esim:

neuvotteluhuoneet

varusteltukeittiö

monitoimitulostin

tietosuojastia

oma lukittu varastotila katutasossa

iLOQ -lukitusjärjestelmä

DNA -kuituyhteys kiinteistölle

logomainospaikka julkisivulla

tilava parkkialue ja lataustolppa 22 kW

Kuvissa näkyvät arkkitehdin tuottamat havainnekuvat toimistotiloista ja valmiista varastotiloista.

Kiinteistö ja sijainti

Ankkuritie 1 on Kelloniemen ja Saarijärven kaupunginosien rajalla.

Tontille on vaivaton tulla joko autolla, polkupyörällä tai julkisilla.

Kiinteistön julkisivuremontti on tehty ja kaikki ikkunat sekä käyntiovet uusittiin samalla.

Koneellinen ilmanvaihto ja ilmalämpöpumput huolehtivat sisäilman laadusta.

Sisustusratkaisut ovat korkeatasoiset.

Soita ja sovitaan, miten edetään!

Perustiedot

Sijainti
Ankkuritie 1, 70460 Kuopio
Kaupunginosa
Kelloniemi
Toimitilan tyyppi
Toimistotila
Tilan pinta-ala
222 m²
Postitoimipaikka
Kuopio
Linkit

Hinta

Vuokra/kk

Talon ja tontin tiedot

Rakennuksen tyyppi
Toimistotila
Energialuokka
N/A