550 m²

Alavankatu 4, Nikkilä, Lahti

Pinta-ala
550 m²
Toimitilan tyyppi
Liiketila
Kaupunginosa
Nikkilä
Kaupunki
Lahti

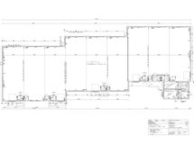
Hyväkuntoinen ja monikäyttöinen sisään ajettava 550 m2 halli vapautuu 1.9.2025. Korkeus vähintään 6m, Harjan kohdalla 9m. 2 nosto-ovea. Pohjakuvasta keskimmäinen tila. Samalla alueella neuvoteltavissa 1100 m2 tila. Hyvä sijainti, erinomainen näkyvyys vieressä kulkevalle vilkkaalle Uudenmaankadulle (tie 167).

Kysy mika.tilli@rhg.fi tai 040 7013005

Perustiedot

Sijainti
Alavankatu 4, 15610 Lahti
Kaupunginosa
Nikkilä
Kohdenumero
12360
Toimitilan tyyppi
Liiketila
Tilan pinta-ala
550 m²
Tontin pinta-ala
0 m²
Lisätietoa vapautumisesta
Heti vapaa
Parveke
Ei
Asunnossa sauna
Ei
Vuokralaistyyppi
Päävuokralainen
Kohde on
Kiinteistö

Hinta

Myyntihinta
Vuokra/kk

Talon ja tontin tiedot

Uudiskohde
Ei
Rakennuksen tyyppi
Liiketila
Energialuokka
Ei lain edellyttämää energiatodistusta.
Tontin koko
0 m²
Tontin omistus
Oma