3 180 € / kk265 m²

Kuningattarenkatu 11, 3 kaupunginosa, LoviisaMonipuolinen ja valoisa tila!

Vuokra/kk
3 180 € / kk
Pinta-ala
265 m²
Kerros
2 / 2
Toimitilan tyyppi
Liiketila
Kaupunginosa
3 kaupunginosa
Kaupunki
Loviisa

Vuokrataan toisen kerroksen valoisa myymälätila Loviisassa - tila jaettavissa useammalle yritykselle!

Nyt vuokrattavana Kauppakeskus Gallerian toisessa kerroksessa oleva myymälätila. Kauppakeskus sijaitsee näkyvällä paikalla aivan Loviisan keskustassa, kaupungin vilkkaimmalla kadulla.

Kauppakeskuksessa toimivat yritykset: Silmäasema Veikon Kone Team Sportia Karvonen Shop Oishi Sushi Lääkärikeskus Fenix

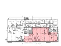
Avoimet ja valoisat, yhteensä n.265 m² tilat soveltuvat yhdelle, tai ovat myös jaettavissa useammalle yritykselle. Takatilassa on keittiötila, vesipiste ja voimavirta. Näin ollen tila sopii mainiosti myös kahvila- ja ravintolatoiminnolle. Ennen ravintola toimintaa on tilassa ollut kirjakauppa; valoisat tilat sopivatkin hyvin juuri myymäläkäyttöön. Kauppakeskukseen tulijan on helppo huomata liikepaikka.

Tilasta loistava näyteikkunanäkymä Kuningattarenkadulle. Toiseen kerrokseen pääsee tarvittaessa myös hissillä, joten lastenvaunut tai liikuntarajoitekaan eivät estä asiakkaita tulemasta ostoksille.

Kauppakeskuksen etupihalla on hyvä markkinapaikka ja sen käyttö on kesäkaudella mahdollista erikseen sovitusti. Ilmainen paikoitus kadulla ja omalla pihalla.

Valoisa tila hyvällä sijainnilla Loviisan keskustassa – tämä tila muuntuu monelle yritykselle!

Kohdetiedot

Sijanti Katuosoite: Kuningattarenkatu 11, 07900 Loviisa Ympäristö: Loviisan ydinkeskusta, kauppakeskus

Rakennus/huoneisto Pinta-alat: Noin 265 m² Kiinteistötyyppi: Kauppakeskus Tilatyyppi: Liikehuoneisto Kunto, varusteet ja palvelut: Hyväkuntoinen tila, toiseen kerrokseen pääsee hissillä, tilassa wc, keittiövalmius, hyvä valaistus, vesipisteitä ja voimavirtaa Pysäköinti: ilmainen, kadulla ja omalla pihalla Vapautuu: Heti vapaa

Vuokrahinta ja kulut Kuukausivuokra: 12 €/m²/kk + alv Sähkö- ja vesimaksu: Sähkö mittauksen mukaan, vesi sisältyy hintaan Lämmitys: Sisältyy vuokraan Muuta: Vakuus 3kk vuokraa vastaava summa, minimisopimus 12kk ja luottotietojen on oltava kunnossa

Perustiedot

Kaupunginosa
3 kaupunginosa
Kohdenumero
22391953
Kerros
2 / 2
Toimitilan tyyppi
Liiketila
Tilan pinta-ala
265 m²
Huoneiston kokoonpano
Monipuolinen ja valoisa tila!
Kunto
Hyvä
Kunnon lisätiedot
Siistit pinnat ja valoisa tila
Lisätietoa vapautumisesta
Heti vapaa
Vuokralaistyyppi
Päävuokralainen

Hinta

Vuokra/kk
3 180 € / kk
Lisätietoa vakuudesta
3 kk vuokraa vastaava summa
Vuokrauksen erityisehdot
Vakuus 3kk vuokraa vastaava summa, minimisopimus 12kk ja luottotietojen on oltava kunnossa
Vuokra-aika
Toistaiseksi voimassa oleva. Ensimmäinen irtisanomisajan ajankohta 12 kuukauden kuluttua

Talon ja tontin tiedot

Rakennuksen tyyppi
Liiketila
Kerroksia
2