300 m²

Ilvesvuorenkatu 25, Ilvesvuori, NurmijärviHalli, wc

Pinta-ala
300 m²
Kerros
1 / 1
Toimitilan tyyppi
Tuotantotila
Kaupunginosa
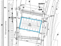
Ilvesvuori
Kaupunki
Nurmijärvi

Ilvesvuoren teollisuusalueella vapautuu hyväkuntoista hallitilaa. Hallista löytyy mm. wc, vesipiste, minikeittiö, voimavirta, lattiakaivo, 350 * 450 nosto-ovi. Vuokraan sisältyy lämmitys. Vuokralainen maksaa hoitovuokrana sähkö, veden ja pihanhoidon. Autopaikat mahtuu hyvin oman tallin edustalle.

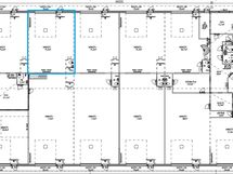
Voit vuokrata yhden tilan noin 74m2 tai tilan joka on laajennettavissa jopa neljän nosto-ovellisen tallin tilaan. Kiinteistön joustava tilajako mahdollistaa räätälöinnin yrityksesi tarpeisiin.

Kiinteistöllä on asfaltoitu ja aidattu piha-alue, energiatehokas maalämpö ja isot nosto-ovet.

Kysy lisää! sampo.ylikulju@kiinteistotahkola.fi p 040 354 1771

Perustiedot

Kaupunginosa
Ilvesvuori
Kerros
1 / 1
Toimitilan tyyppi
Tuotantotila
Tilan pinta-ala
300 m²
Huoneiston kokoonpano
Halli, wc
Lisätietoa vapautumisesta
Heti
Parveke
Ei
Vuokrataan kalustettuna
Ei
Asunnossa sauna
Ei
Muut ehdot
Vuokranmaksupäivä kk:n 5. päivä
Kohde on
Kiinteistö

Hinta

Myyntihinta
Vuokra/kk
Lisätietoa vakuudesta
2kk:n vuokran suuruinen

Muut maksut

Vesimaksu
/ kk

Talon ja tontin tiedot

Uudiskohde
Ei
Rakennuksen tyyppi
Tuotantotila
Kerroksia
1
Hissi
Ei
Taloyhtiössä on sauna
Ei
Energiatodistus
Ei lain edellyttämää energiatodistusta
Lisätietoja lämmityksestä
K

Tilat ja materiaalit

Pysäköintitilan kuvaus
Ei