229 m²

Rautatienkatu 81, Limingantulli, Oulu

Pinta-ala
229 m²
Kerros
2
Toimitilan tyyppi
Toimistotila
Kaupunginosa
Limingantulli
Kaupunki
Oulu

Limingantullissa Limingantien ja Rautatienkadun kulmassa Vuokrataan liike/toimistotilaa näkyvällä ja liikenteellisesti hyvin saavutettavalla paikalla!

Rakennuksessa on koneellinen tulo- ja poistoilmanvaihto tuloilman viilennyksellä. Huoneistossa on ATK-lähiverkko.

Läheisiä muita toimijoita Alasintien puolella on mm XXL- urheiluvälinekauppa, Kärkkäinen ja Kuntokeskus Liikku. Vähän eteenpäin Limingantietä ajettaessa on mm. Prisma ja isoja Kodinkoneliikkeitä sekä autokauppoja.

Rakennus on saneerattu 2021.

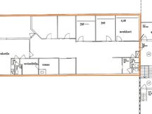
2. krs n. 229 jyv m2 vapautuu 1.6.2025

1. krs n. 209 jyvm2 vapautuu 1.5.2025

Pyydä lisätietoja tästä kohteesta!

Perustiedot

Sijainti
Rautatienkatu 81, 90400 Oulu
Kaupunginosa
Limingantulli
Kerros
2
Toimitilan tyyppi
Toimistotila
Tilan pinta-ala
229 m²
Kokonaispinta-ala
229 m²
Tiedustelut
Kohdetta hoitaa Pekka Laurila-Harju 010 5220 603 tai pekka.laurila-harju@catella.fi

Hinta

Vuokra/kk

Talon ja tontin tiedot

Rakennuksen tyyppi
Toimistotila