2 300 € / kk400 m²

Höyläämötie 6, Kello, Oulu400m2 hallitilaa Holsinmäeltä

Vuokra/kk
2 300 € / kk
Pinta-ala
400 m²
Huoneita
4
Kerros
1 / 1
Rakennusvuosi
2005
Toimitilan tyyppi
Liiketila
Kaupunginosa
Kello
Kaupunki
Oulu

400m2 hallitilaa Holsinmäeltä

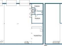
Monikäyttöinen toimitila Holstinmäen teollisuusalueelta. Yhtenäinen hallitila n. 18x18m. Öljynerottelukaivoja hallissa on 6 kpl, kolme isoa 4x5m nosto-ovea. Hallitila lämpenee kolmella ilmalämpöpumpulla. Lisäksi n. 45m² baari/keittiö, kaksi wc-tilaa, kaksi pukuhuonetta, suihku, siivouskomero. Ylhäällä n. 45m² parvitilaa sekä n. 45² m avotoimisto, josta käynti parvekkeelle sekä näkymät halliin. Toimistossa sähköpatterit. Piha on asfaltoitu ja halli on kierrettävissä raskaalla kalustolla. Lisätietoja Aino Petäjäsoja, p. 0504200325.

Katso kohteen tarkemmat tiedot www.habita.com -sivustolta.

Perustiedot

Sijainti
Höyläämötie 6, 90820 Oulu
Kaupunginosa
Kello
Kohdenumero
972131
Kerros
1 / 1
Toimitilan tyyppi
Liiketila
Tilan pinta-ala
400 m²
Tontin pinta-ala
4 982 m²
Kokonaispinta-ala
400 m²
Huoneiston kokoonpano
400m2 hallitilaa Holsinmäeltä
Huoneita
4
Lisätietoa vapautumisesta
1.4.2026
Määräaikainen vuokrakohde
Ei
Kohde on
Osakehuoneisto
Postitoimipaikka
Kello

Hinta

Vuokra/kk
2 300 € / kk

Talon ja tontin tiedot

Taloyhtiön nimi
Kiinteistö Oy Höyläämötie 6-8
Rakennuksen tyyppi
Liiketila
Rakennusvuosi
2005
Liiketilojen pinta-ala
800 m²
Liikehuoneistojen lukumäärä
2
Kerroksia
1
Hissi
Ei
Kattomateriaali
Pelti
Kattotyyppi
Harjakatto
Energiatodistus
Ei lain edellyttämää energiatodistusta
Tontin koko
4 982 m²
Kiinteistönhoito
Omatoiminen, lumenpudotus katolta ja auraus kuuluu vuokralaiselle.
Isännöinti
Oma isännöinti
Kaavoitustiedot
Lisätietoja Oulun kaupunki, puh.08558410
Maasto
Tasainen
Lämmitys
Ilmalämpöpumppu
Lisätietoja lämmityksestä
Ilmalämpöpumppu
Maanvuokraaja
Oulun kaupunki, lisätietoja p.08-558410
Tontin omistus
Vuokralla