11 900 € / kk848 m²

Jääsalontie 10, Limingantulli, OuluLiiketila / korkea halli, toimistot

Vuokra/kk
11 900 € / kk
Pinta-ala
848 m²
Huoneita
0
Kerros
1 / 2
Toimitilan tyyppi
Liiketila
Kaupunginosa
Limingantulli
Kaupunki
Oulu

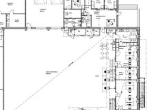
Vuokrataan Limingantullista, Jääsalontie 10 osoitteesta, 848m2 toimitilakokonaisuus. Tilat koostuvat korkeasta hallitilasta (vapaakorkeus 5,5m), toimistotiloista, jotka sijoittuvat kahteen kerrokseen. Toimistotilat koostuvat avotilasta, yksittäisistä huoneista sekä neuvottelutilasta.

Takapihan puolella lastauslaituri, josta kaksi nosto-ovea lastaustilaan, joista toinen on sähköistetty. Lastaustilassa tavaranostin.

Piha-alue on asfaltoitu, reilusti pihatilaa ja parkkipaikkoja autoille.

Vuokra 11 900€ / kk + alv, sisältää lämmityksen. Vesi ja käyttösähkö erilliskustannuksena.

Esittelyt ja lisätietoa Julia Hoikkala 050 411 8747 tai julia.hoikkala@op.fi

Perustiedot

Sijainti
Jääsalontie 10, 90400 Oulu
Kaupunginosa
Limingantulli
Kohdenumero
613732
Kerros
1 / 2
Toimitilan tyyppi
Liiketila
Tilan pinta-ala
848 m²
Kokonaispinta-ala
848 m²
Huoneiston kokoonpano
Liiketila / korkea halli, toimistot
Huoneita
0
Lisätietoa vapautumisesta
Sopimuksen mukaan
Tehdyt remontit
2023 julkisivuremontti
Tilan jakaminen
Tila ei ole jaettavissa.
Lisätiedot
Rakennusvuosi: 1971. Vuonna 2022 remontoidut tilat. Koneellinen ilmanvaihto, jäähdytys ilmalämpöpumpuin. Kaukolämpö. Hallin vapaakorkeus n. 5,5m valaisimiin mitattuna
Kohde on
Osakehuoneisto
Ensiesittelyssä
Ei
Postitoimipaikka
OULU

Hinta

Vuokra/kk
11 900 € / kk

Muut maksut

Muut kustannukset
Vuokra 11 900€ / kk + alv, sisältää lämmityksen. Vesi, käyttösähkö ja jätehuolto erilliskustannuksena.

Talon ja tontin tiedot

Uudiskohde
Ei
Rakennuksen tyyppi
Liiketila
Huoneistojen lukumäärä
0
Liiketilojen pinta-ala
0 m²
Liikehuoneistojen lukumäärä
0
Kerroksia
2
Lämmitys
Muu
Lämmönjakelu
Muu
Kunnan numero
564