699 € / kk107,5 m²

Pursikatu 5 ja 7, Kaanaa, Raisio

Vuokra/kk
699 € / kk
Pinta-ala
107,5 m²
Toimitilan tyyppi
Varastotila
Kaupunginosa
Kaanaa
Kaupunki
Raisio

UUDISKOHDE Vuokrataan varastotilaa Raisiosta

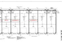
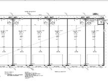
Myydään tai vuokrataan joulukuussa 2024 valmistuvia Raision sataman vieressä olevia 107m² varastotiloja. Yksi varastoista on 103m².

Tämä kiinteistö tarjoaa erinomaisen sijainnin aivan Raisionlahden venesataman tuntumassa, Naantalintien varrella. Näkyvyys on ensiluokkaista ja sijainti tarjoaa helpon saavutettavuuden sekä mainion näkyvyyden liikenteelle.

VARUSTELUT:

- Asfaltoitu piha-alue - Nosto-ovi, varustettuna erillisellä käyntiovella - Ilmalämpöpumppu sekä erillinen lämpöpuhallin - wc- varaus - Painovoimainen ilmanvaihto - Öljynerotuskaivo hälyttimellä - Seinät maalataan ja lattia pinnoitetaan kestävällä epoksipinnoitteella - Lattian kantavuus: 1100 kg/m²

Varastot ovat vuokrattavissa hintaan 6,5 â¬/m². Pursikatu 5 varastoista vapaana on 4 ja 5. Pursikatu 7 varastoista vapaana on 4, 6 ja 7.

Tervetuloa tutustumaan, varaathan välittäjältä oman esittelyaikasi. Voit kysyä meiltä myös muita sopivia vaihtoehtoja, kauttamme löydät juuri Teidän tarpeisiinne sopivat tilat. Palvelumme on tilanhakijalle veloitukseton!

Perustiedot

Kaupunginosa
Kaanaa
Toimitilan tyyppi
Varastotila
Tilan pinta-ala
107,5 m²
Kokonaispinta-ala
107,5 m²
Kunto
Hyvä
Kunnon lisätiedot
Uudiskohde
Lisätiedot
Nosto-oven koko: 4,2 m x 4, 5m
Postitoimipaikka
Raisio

Hinta

Vuokra/kk
698,75 € / kk

Talon ja tontin tiedot

Rakennuksen tyyppi
Varastotila