2 484 € / kk180 m²

Kalevankatu 11-13, Seinäjokiavok + p

Vuokra/kk
2 484 € / kk
Pinta-ala
180 m²
Kerros
3
Toimitilan tyyppi
Toimistotila
Kaupunki
Seinäjoki

Tyylikäs 180m2 toimisto/toimitila Seinäjoen ydinkeskustassa, Kalevankatu 11-13. Koneellinen ilmastointi viilennyksellä. Kiinteistössä oma parkkihalli.

Tyylikäs 180m2 toimisto/toimitila Seinäjoen ydinkeskustassa, erinomaisella paikalla, Kalevankatu 11-13, kolmas kerros. Iso keittiö/lounge. Erillinen neuvottelu/kokoushuone. Paljon avaraa selkeää tilaa, 2 wc. Kiinteistössä oma kellariparkkihalli.

Koneellinen ilmastointi viilennyksellä. Parveke lisää viihtyvyyttä.

Vuokrasuhteen voi solmia määräaikaisena tai toistaiseksi voimassa olevana 3 kk tai 6 kk irtisanomisajalla. Neliövuokra 13,80€ +alv

Edullista lämmintä varastotilaa vuokrattavissa kellarikerroksessa.

Samassa kiinteistössä vuokralla myös ravintola ja kahvila.

Mahdollisuus vuokrata useampikin autopaikka kiinteistön parkkihallista, 80,00€/kk, sis. alv. Vuokralaisille autopaikoista -20%.

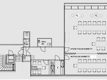
Pieniin ja suuriin tilaisuuksiin vuokrattavissa Kalevankatu 12, tyylikäs ja persoonallinen koulutus-kokous- neuvottelutila ( max. 40 ihmistä). Tilassa kaksi isompaa liukuovella erotettavaa huonetta, HYVÄNMIELEN KABINETTI JA NOSTALGIA KABINETTI, sekä keittiö ja PIKKU KABINETTI. Hissi tai portaat. Neuvottelu/kokoustila on esteetön. Tehokas ilmastointi jäähdytyksellä. - Kiinteistön vuokralaisille tuntivuokra 35 € +alv.

Lämpimästi tervetuloa tutustumaan tiloihin!

Smile Invest Oy: Rea Laitila + 358 50 5227707 Mikko Laitila + 358 500 683004

Perustiedot

Sijainti
Kalevankatu 11-13, 60100 Seinäjoki
Kohdenumero
20085749
Kerros
3
Toimitilan tyyppi
Toimistotila
Tilan pinta-ala
180 m²
Kokonaispinta-ala
180 m²
Huoneiston kokoonpano
avok + p
Kunto
Hyvä
Keittiö
Avokeittiö
Parveke
Kyllä
Muut ehdot
Tupakointi kielletty

Hinta

Vuokra/kk
2 484 € / kk
Vakuus
2 484 €
Lisätietoa vakuudesta
1 kk:n vuokra

Muut maksut

Lämmityskustannukset
Sisältyy vuokraan.

Talon ja tontin tiedot

Rakennuksen tyyppi
Toimistotila