474 m²

Päivölänkatu 2, Pohja, Seinäjoki

Pinta-ala
474 m²
Kerros
1
Rakennusvuosi
2008
Toimitilan tyyppi
Liiketila
Kaupunginosa
Pohja
Kaupunki
Seinäjoki

Siistiä ja valoisaa liiketilaa Seinäjoella, vuonna 2008 valmistuneessa Retail Parkissa.

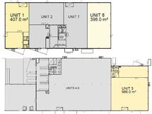
Tämä 474m² tila sijaitsee kiinteistön katutasossa. Pohjakuvassa tila on nimellä UNIT 2. Runsaasti asiakaspaikkoja ja erinomaiset lastausmahdollisuudet liiketiloihin. Kuvat ovat yleiskuvia kiinteistön tiloista.

Seinäjoki Retail on liikekiinteistö-kokonaisuus, jolla on hyvä sijainti Seinäjoen keskustan tuntumassa, lähellä valtaväyliä. Kiinteistö on helposti saavutettavissa niin omalla autolla kuin julkisella liikenteellä. Tavaroiden lastaus onnistuu hyvien lastausmahdollisuuksien ansiosta. Piha-alueella on hyvin paikoitustiloja.

Kysy lisää numerosta 044 723 4700 tai info@bref.fi. Palvelumme on tilanhakijoille ilmainen.

Perustiedot

Kaupunginosa
Pohja
Kerros
1
Toimitilan tyyppi
Liiketila
Tilan pinta-ala
474 m²
Kokonaispinta-ala
474 m²
Kunto
Hyvä
Parveke
Ei
Asunnossa sauna
Ei
Palvelut
Keskustan palvelut noin 1,5 kilometrin päässä. Alueella toimivat mm. Prisma, Gigantti ja useat huonekaluliikkeet.

Hinta

Vuokra/kk

Talon ja tontin tiedot

Rakennuksen tyyppi
Liiketila
Rakennusvuosi
2008
Taloyhtiössä on sauna
Ei
Energiatodistus
Ei lain edellyttämää energiatodistusta
Liikenneyhteydet
Hyvät kulkuyhteydet omalla autolla ja julkisella liikenteellä.