195 € / kk9 m² - 20 m²

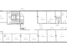
Kalevankatu 12, Keskusta, SeinäjokiToimistohotelli, 14 erikokoista huonetta + k/lounge + 12 hengen kokoushuone +eteinen, neljä wc. Esteetön. Vuokraan sisältyy yhteisiä tiloja reilut 150 neliötä. Kokonaispinta-ala 320 m2. Huoneiden koko vaihtelee 8,5 neliöstä 20,5 neliöön ja vuokrat 195€ - 365€ + (alv).

Vuokra/kk
195 € / kk
Pinta-ala
9 m² - 20 m²
Huoneita
14
Kerros
2
Toimitilan tyyppi
Toimistotila
Kaupunginosa
Keskusta
Kaupunki
Seinäjoki

Uusi toimistohotelli huippuhyvällä paikalla Seinäjoella, Kalevankatu 12. Pinta-ala 323 m2. 14 erikokoista valoista huonetta, neuvottelutila 12 henkilölle, missä iso TV näyttö. Eteinen. Keittiö/ lounge, hissi ja 4 wc. Esteetön. Vuokra alk. 195€ (+alv).

Ilmanvaihto jäähdytyksellä. Huoneet ovat heti vapaana. Tule valitsemaan niistä toimintaasi parhaiten sopiva. Tiloja voi myös yhdistellä. Tilat soveltuvat verolliseen tai verottomaan toimintaan. Suurimpaan osaan huoneista mahtuu useampikin ihminen työskentelemään. Sähkö ja lämmitys kuuluvat vuokraan sekä yhteistilojen siivous. Yhteispinta-alaa reilut 150 neliötä. Kokonaispinta-ala 320 m2.

Sisäilmatutkimus tehty. Tulos erinomainen A ja A+.

Käynti katutasolta hissillä, tai portaita, sekä ihanteellisesti suoraan 2. kerroksen autokannen kautta, mistä mahdollisuus vuokrata yksi tai useampikin autopaikka.

Keittiö/lounge sekä 12 hengen kokous/neuvottelutila ovat valmiiksi kalustettu. Neuvottelutilan käyttö varausten mukaan.

Vuokrasopimuksen voi tehdä määräaikaisena tai toistaiseksi voimassa olevana 3 kk irtisanomisajalla.

Vuokrat per huone : 195€ (+alv) 9,0 m2 Numerot 7, 8, 9, 10 280€ " 10,5 m2 Numerot 11,12 295€ " 12,0 m2 Numerot 1,2,5,6 320€ " 13,5 m2 Numero 14 345€ " 15,0 m2 Numero 13 minikeittiö 345€ " 16,0 m2 Numero 3 365€ " 20,5 m2 Numero 4

-Autopaikkojen hinnat: Peruspaikka 48 € ja tolpallinen 65 €. (ei sähköauton lataukseen). Vuokralainen saa näistä hinnoista -20%. Hinnat sisältävät veron.

Autopaikkojen vuokraus: Pohjanmaan kiinteistöpalvelut Oy, Vesa Anttila +358 40 9667531

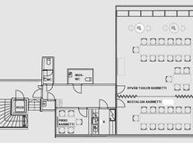
Pieniin ja suuriin tilaisuuksiin vuokrattavissa saman rappukäytävän varrelta tyylikäs ja persoonallinen koulutus-kokous- neuvottelutila ( max. 40 ihmistä). Tilassa kaksi isompaa liukuovella erotettavaa huonetta, HYVÄNMIELEN KABINETTI JA NOSTALGIA KABINETTI, sekä keittiö ja PIKKU KABINETTI. Hissi tai portaat. Neuvottelu/kokoustila on esteetön. Tehokas ilmastointi jäähdytyksellä. - Kiinteistön vuokralaisille tuntivuokra 35 € +alv.

Esittelyt:

Smile Invest Oy Rea Laitila rea.laitila@invest.fi 050 5227707 Mikko Laitila mikko.laitila@invest.fi 500 683004

Perustiedot

Kaupunginosa
Keskusta
Kohdenumero
22976909
Kerros
2
Toimitilan tyyppi
Toimistotila
Joustava pinta-ala
9 m² - 20 m²
Kokonaispinta-ala
320 m²
Huoneiston kokoonpano
Toimistohotelli, 14 erikokoista huonetta + k/lounge + 12 hengen kokoushuone +eteinen, neljä wc. Esteetön. Vuokraan sisältyy yhteisiä tiloja reilut 150 neliötä. Kokonaispinta-ala 320 m2. Huoneiden koko vaihtelee 8,5 neliöstä 20,5 neliöön ja vuokrat 195€ - 365€ + (alv).
Huoneita
14
Kunto
Hyvä
Keittiö
Avokeittiö
Vuokralaistyyppi
Päävuokralainen
Muut ehdot
Tupakointi kielletty, Kotivakuutus vaaditaan

Hinta

Vuokra/kk
195 € / kk
Lisätietoa vakuudesta
1 kk:n vuokra
Vuokrauksen erityisehdot
Vuokrasopimus määräaikaisena, tai toistaiseksi voimassa olevana.
Vuokra-aika
Toistaiseksi voimassa oleva

Muut maksut

Lämmityskustannukset
Sisältyy vuokraan.
Vesimaksun lisätiedot
Vesimaksu 10€ per henkilö
Sähkömaksu
Sisältyy vuokraan
Muut kustannukset
Jätemaksu 5€ per henkilö

Talon ja tontin tiedot

Rakennuksen tyyppi
Toimistotila