463 m²

Linnankatu 3 A, Keskusta, Turku

Pinta-ala
463 m²
Toimitilan tyyppi
Toimistotila
Kaupunginosa
Keskusta
Kaupunki
Turku

Personallinen toimistohuoneisto aivan jokirannan äärellä

Vuokrattavana uniikkia tilaa Vähätorin varrella upeassa Casagrandentalossa. Tilat sijaitsevat rakennuksen 2. ja 3. kerroksessa, tarjoten viihtyisän ja inspiroivan ympäristön aivan kaupungin sydämessä. Lounasravintolat ja muut palvelut löytyvät aivan vierestä.

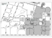
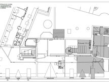
Tila muodostuu kahdesta huoneistosta, ja tilaan on olemassa pohjakuvasuunnitelma, joka näyttää, miten siitä voi tehdä monikäyttöisen ja toimivan kokonaisuuden.

Lopullinen toteutus räätälöidään kuitenkin käyttäjän tarpeiden mukaisesti, tarjoten joustavuutta ja mahdollisuuden optimoida tila juuri oman toiminnan vaatimuksiin.

Huoneistossa on kuituyhteys, joka takaa nopeat ja luotettavat yhteydet. Tämä tekee tilasta erityisen sopivan modernin yritystoiminnan tarpeisiin, olipa kyseessä toimistokäyttö tai muu vastaava toiminta.

Tervetuloa tutustumaan, varaathan välittäjältä oman esittelyaikasi.

Voit kysyä meiltä myös muita sopivia vaihtoehtoja, kauttamme löydät juuri Teidän tarpeisiinne sopivat tilat.

Palvelumme on tilanhakijalle veloitukseton!

Perustiedot

Sijainti
Linnankatu 3 A, 20100 Turku
Kaupunginosa
Keskusta
Toimitilan tyyppi
Toimistotila
Tilan pinta-ala
463 m²
Kokonaispinta-ala
463 m²
Kunto
Hyvä
Kunnon lisätiedot
Hyvä
Lisätiedot
Autopaikkoja vuokrattavissa Julian parkkitalosta.
Postitoimipaikka
Turku

Hinta

Vuokra/kk

Talon ja tontin tiedot

Rakennuksen tyyppi
Toimistotila

Tilat ja materiaalit

Pysäköintitilan kuvaus
Parkkitalo