290 m²

Puutarhakatu 45, IX kaupunginosa, Turku

Pinta-ala
290 m²
Kerros
4 / 6
Toimitilan tyyppi
Toimistotila
Kaupunginosa
IX kaupunginosa
Kaupunki
Turku

Vuokrataan heti vapaa tasokas toimistotila Puutarhakadun varresta!

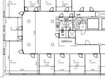
Vuokrataan heti vapaa siisti sekä valoisa 290m² toimistotila, joka tarjoaa erinomaiset puitteet tehokkaaseen ja viihtyisään työskentelyyn. Tila sijaitsee rakennuksen 4. kerroksessa ja se koostuu useista eri kokoisista toimisto- ja neuvotteluhuoneista sekä viihtyisästä aula- ja keittiötilasta. Katso tarkempi tilajako kuvien pohjakuvasta.

Helposti saavutettavissa oleva kiinteistö on vilkkaan Puutarhakadun varrella näyttävällä sisääntuloaulalla sekä kaksi hissiä takaavat sujuvan kulun. Kiinteistöön on saatavilla kuituyhteys ja katutason suosittu lounasravintola palvelee niin kiinteistössä kuin lähiseudulla työskenteleviä. Liikenneyhteydet kiinteistölle ovat erinomaiset ja pysäköinti on vaivatonta niin tien varressa olevien maksuttomien paikkojen kuin pihalla olevien asiakaspaikkojen ansiosta. Vuokraan lisätään alv + kulut.

HUOM! Tilanhakijalle palvelumme on maksuton ja etsimme juuri teille sopivan tilan laajasta tilavalikoimastamme.

Ota yhteyttä ja kysy lisää: www.blanctoimitilat.fi

Toni Niskanen toni.niskanen@blanckiinteisto.com +358 44 0758 171

Perustiedot

Sijainti
Puutarhakatu 45, 20100 Turku
Kaupunginosa
IX kaupunginosa
Kohdenumero
80397266
Kerros
4 / 6
Toimitilan tyyppi
Toimistotila
Tilan pinta-ala
290 m²
Kokonaispinta-ala
290 m²
Lisätietoa vapautumisesta
Heti.
Kohde on
Osakehuoneisto
Postitoimipaikka
Turku

Hinta

Vuokra/kk

Talon ja tontin tiedot

Uudiskohde
Ei
Rakennuksen tyyppi
Toimistotila
Kerroksia
6