105 m²

Itäinen Rantakatu 74 D, Martti, Turku

Pinta-ala
105 m²
Toimitilan tyyppi
Toimistotila
Kaupunginosa
Martti
Kaupunki
Turku

Tyylikästä toimistoa Aurajoenrannalta

Heti vapaana oleva tyylikäs toimisto upeassa loftkiinteistöstä, Aurajoenrannan tuntumasta.

Vuokrattavissa kaksi autopaikkaa pihalta sekä yksi paikka hallista.

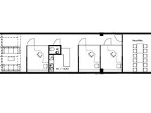
Korkean avotilan lisäksi kolme erillistä työhuonetta, neuvottelutila, laadukas keittiö jossa integroitu jääkaappi ja tiskikone. Lisäksi huoneistolla on parveke sisäpihalle.

Tervetuloa tutustumaan, varaathan välittäjältä oman esittelyaikasi. Voit kysyä meiltä myös muita sopivia vaihtoehtoja, kauttamme löydät juuri teidän tarpeisiinne sopivat tilat. Palvelumme on tilanhakijalle veloitukseton!

Perustiedot

Sijainti
Itäinen Rantakatu 74 D, 20810 Turku
Kaupunginosa
Martti
Toimitilan tyyppi
Toimistotila
Tilan pinta-ala
105 m²
Kokonaispinta-ala
105 m²
Kunto
Hyvä
Kunnon lisätiedot
Uutta vastaava
Postitoimipaikka
Turku

Hinta

Vuokra/kk

Talon ja tontin tiedot

Rakennuksen tyyppi
Toimistotila

Tilat ja materiaalit

Pysäköintitilan kuvaus
on