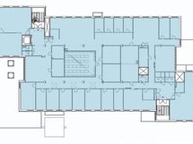
1 193 m²

Poikkikuja 7, Vaasa, Vaasa

Pinta-ala
1 193 m²
Kerros
3
Toimitilan tyyppi
Toimistotila
Kaupunginosa
Vaasa
Kaupunki
Vaasa

Nyt vuokrattavissa toimisto kattavilla palveluilla. Tämä suuri toimisto sijaitsee aivan Vaasan keskustan välittömässä läheisyydessä Ruutu toimitilakiinteistössä. Kiinteistöstä löytyy toimistojen lisäksi laadukas lounasravintola, aulapalvelu, kokoustilat, pyöräparkki sekä täysin räätälöitävät Toimitilat.

Me Croisettella autamme teitä löytämään teille parhaat tilat! Olemme puolueettomia asiantuntijoita ja tunnemme toimitilamarkkinat, talot sekä tilat vankalla kokemuksella. Meillä on välityksessä kaikki toimitilat ja tiedämme niiden alustavat vuokratasot.

Tehtävämme on tehdä toimitilahaustanne onnistunut ja helppo. Saamme palkkiomme kiinteistönomistajalta, joten sinulle palvelumme on täysin maksuton.

Perustiedot

Sijainti
Poikkikuja 7, 65100 Vaasa
Kaupunginosa
Vaasa
Kerros
3
Toimitilan tyyppi
Toimistotila
Tilan pinta-ala
1 193 m²
Kokonaispinta-ala
1 193 m²
Lisätietoa vapautumisesta
Vapaa

Hinta

Vuokra/kk

Talon ja tontin tiedot

Rakennuksen tyyppi
Toimistotila