151,5 m²

Vernissakatu 3, Tikkurila, Vantaa

Pinta-ala
151,5 m²
Toimitilan tyyppi
Varastotila
Kaupunginosa
Tikkurila
Kaupunki
Vantaa

Vernissakatu 3, 152 m2

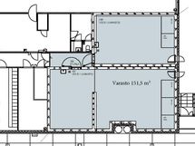
Vuokrataan kaksiosainen siisti varastotila. Lastauspaikalta varaston ovelle n. 35 m. Käytävän leveys n. 1,6 m. Väestönsuojatila.
Lisätietoja soita 020 730 4530 tai info@repoint.fi. Palvelumme on tilanhakijalle ilmainen.

Perustiedot

Sijainti
Vernissakatu 3, 01300 Vantaa
Kaupunginosa
Tikkurila
Toimitilan tyyppi
Varastotila
Tilan pinta-ala
151,5 m²
Kokonaispinta-ala
151,5 m²
Kunto
Hyvä
Vuokralaistyyppi
Päävuokralainen
Tiedustelut
Lisätietoja soita 020 730 4530 tai info@repoint.fi

Hinta

Vuokra/kk

Talon ja tontin tiedot

Rakennuksen tyyppi
Varastotila