147 m²

Sarkatie 2, Varisto, Vantaa

Pinta-ala
147 m²
Kerros
2
Toimitilan tyyppi
Toimistotila
Kaupunginosa
Varisto
Kaupunki
Vantaa

Vuokrattavana toimistotilaa Vantaan Varistossa.

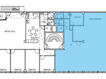
Tämä valoisa 147 m² toimisto sijaitsee kiinteistön 2. kerroksessa. Tila on avonainen, ja siihen kuuluvat omat wc- ja keittiötilat. Toimistoa on mahdollista remontoida vuokralaisen tarpeen mukaan.

Sarkatie 2 on toimisto- ja varastokiinteistö Kehä III:n ja Vihdintien risteyksessä. Kiinteistö on erinomainen sellaiselle yritykselle, jonka pitää saada eri toimintoja saman katon alle. Kiinteistön pihalla on hyvin pysäköintitilaa.

Kysy lisää numerosta 044 723 4700 tai info@bref.fi. Palvelumme on tilanhakijoille ilmainen.

Perustiedot

Sijainti
Sarkatie 2, 01720 Vantaa
Kaupunginosa
Varisto
Kerros
2
Toimitilan tyyppi
Toimistotila
Tilan pinta-ala
147 m²
Kokonaispinta-ala
147 m²
Kunto
Hyvä
Parveke
Ei
Asunnossa sauna
Ei
Palvelut
Lähistöllä lounaspaikkoja ja huoltoasema. Autopaikkoja pihalla.

Hinta

Vuokra/kk

Talon ja tontin tiedot

Rakennuksen tyyppi
Toimistotila
Taloyhtiössä on sauna
Ei
Energiatodistus
Ei lain edellyttämää energiatodistusta
Liikenneyhteydet
Hyvät liikenneyhteydet Vihdintietä ja Kehä III:sta pitkin.