178 m²

Silkkitehtaantie 5, Tikkurila, Vantaa

Pinta-ala
178 m²
Kerros
1
Toimitilan tyyppi
Toimistotila
Kaupunginosa
Tikkurila
Kaupunki
Vantaa

SILKKITEHTAANTIE 5 - toimisto 178m2

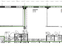
Upea selkeälinjainen kombi-toimistotila Silkin Konttorin ensimmäisestä kerroksesta. Tila sijaitsee pääsisäänkäynnin yhteydessä, josta käynti jaetun odotustilan kautta. Tästä näyttävästä toimistotilasta löytyy lasitettu suuri neuvottelutila, 2 avotilaa, 3 puhelukoppia ja 2 kaunista wc-tilaa. Isot ruutuikkunat, hulppea huonekorkeus lasituksineen antavat tilasta ilmavan, valoisan ja kokoaan suuremman vaikutelman. Tämä industrial-henkinen tila on myös jäähdytetty.

Lisätiedot ja kohdenäytöt: p. 040 7070 321 / Heikki

Kiinteistön kuvaus: Tikkurilan Silkin suojellun punatiilisen korttelin on suunnitellut Herman Kues vuonna 1934. Käytössä olevat rakennukset ovat saneerattu 2020. Kiinteistöllä LEED-Gold ympäristö-sertifikaatti. Tämä kaunis tehdasmiljöö sijaitsee lyhyen kävelymatkan päässä Tikkurilan asemalta, Keravanjoen kupeessa. Kiinteistön edustalla reilusti paikoitustilaa. Pyöräilijöille pukeutumistilat ja pyöräparkki. Päivittäistä toimintaa helpottamassa alueen lukuisat palvelut (kuntosalit, ravintolat, kampaamot, ym.)

Lisää kohteita: www.premises.fi / p. 020 7290 710 Kohteella ei ole lain edellyttämää energiatodistusta.

Perustiedot

Kaupunginosa
Tikkurila
Kerros
1
Toimitilan tyyppi
Toimistotila
Tilan pinta-ala
178 m²
Kokonaispinta-ala
178 m²
Lisätiedot
Ilmastointi: Kyllä IT-verkko: Kyllä
Tiedustelut
Ota yhteyttä 020 7290 710 tai asiakaspalvelu@premises.fi
Postitoimipaikka
Vantaa

Hinta

Vuokra/kk

Talon ja tontin tiedot

Uudiskohde
Ei
Rakennuksen tyyppi
Toimistotila
Rakennusvuoden lisätiedot
1934
Liikenneyhteydet
Tikkurilan asema: 750 m - Bussipysäkki: 300 m (571/611) - 650 m (999) - Autolla Kehä-III: 900 m