6 084 m²

Teilimäki 4, Aviapolis, Vantaa

Pinta-ala
6 084 m²
Toimitilan tyyppi
Varastotila
Kaupunginosa
Aviapolis
Kaupunki
Vantaa

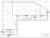
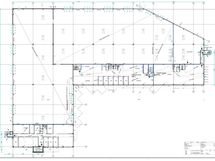
Kattava kokonaisuus varasto- ja toimistotilaa erinomaisella sijainnilla Helsinki-Vantaan lentokentän välittömässä läheisyydessä. Varastotila on varustettu lastaustaskuin, ja tila jakautuu pohjakuvan mukaisesti korkeaan (n. 8 m) ja matalaan varastoon. Toimistotiloissa omat taukohuoneet sekä peseytymistila. Pyydä tarkemmat pohjakuvat meiltä!

Teilimäki 4 kiinteistö, Aerocenter, on valmistunut vuonna 2008 ja tarjoaa monipuolista tilaa erinomaisella sijainnilla lentokentän vieressä ja Tuusulanväylän sekä Kehä III:n läheisyydessä. Aerocenterin erinomainen loKohteessa on vuonna 2020 asennettu aurinkovoimala ja oma aidattu piha-alue.

Croisette on uusi ja innovatiivinen toimitilojen välitysyritys Suomessa. Meillä on vahva halu auttaa teitä löytämään paras toimitilaratkaisu mahdollisimman vaivattomasti.

Huomaathan, että kaikki vapaat ja vapautuvat tilat ovat kauttamme saatavilla. Osa tiloista on hiljaisessa markkinoinnissa, mutta ottamalla meihin yhteyttä saat nekin tietoosi.

Palvelumme on tilanhakijoille täysin maksutonta.

Perustiedot

Sijainti
Teilimäki 4, 01530 Vantaa
Kaupunginosa
Aviapolis
Toimitilan tyyppi
Varastotila
Tilan pinta-ala
6 084 m²
Kokonaispinta-ala
6 084 m²
Lisätietoa vapautumisesta
Sopimuksen mukaan

Hinta

Vuokra/kk

Talon ja tontin tiedot

Rakennuksen tyyppi
Varastotila
Hissi
Kyllä