289 m²

Jaakonkatu 2, Martinlaakso, Vantaa

Pinta-ala
289 m²
Kerros
2 / 4
Rakennusvuosi
1992
Toimitilan tyyppi
Toimistotila
Kaupunginosa
Martinlaakso
Kaupunki
Vantaa

Toimistotilaa Martintalosta Vantaalta!

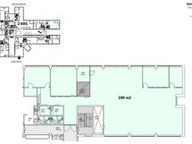
Vuokrattavana 289m2 2.kerroksen toimisto. Martintalon toisen kerroksen valoisa pientoimistoalueella sijaitsevassa tehokkaassa avotilassa on neljä eri kokoista toimistohuonetta, avotila, kopiokonehuone, pieni varasto, keittiä ja wc,t. Martintalo sijaitsee Vantaankosken juna-aseman läheisyydessä, hyvien kulkuyhteyksien varrella.

Vantaan Martintalo sijaitsee loistavien liikenneyhteyksien varrella. Vantaankosken Juna-asema on kävelymatkan päässä.

Kiinteistössä myös monipuolisia palveluita vuokralaisille: - Lounasravintola - Aulapalvelu - Vuokrattavat neuvotteluhuoneet - Vuokrattavia autopaikkoja - Kuntosali - Saunatilat

Ota yhteyttä!

Sampo Ylikulju p 040 354 1771 sampo.ylikulju@kiinteistotahkola.fi

Perustiedot

Sijainti
Jaakonkatu 2, 01620 Vantaa
Kaupunginosa
Martinlaakso
Kerros
2 / 4
Toimitilan tyyppi
Toimistotila
Tilan pinta-ala
289 m²
Lisätietoa vapautumisesta
Heti
Parveke
Ei
Vuokrataan kalustettuna
Ei
Asunnossa sauna
Ei
Muut ehdot
Vuokranmaksupäivä kk:n 5. päivä
Kohde on
Kiinteistö

Hinta

Myyntihinta
Vuokra/kk
Lisätietoa vakuudesta
1kk:n vuokran suuruinen

Muut maksut

Vesimaksu
/ kk

Talon ja tontin tiedot

Uudiskohde
Ei
Rakennuksen tyyppi
Toimistotila
Rakennusvuosi
1992
Rakennusvuoden lisätiedot
1992
Kerroksia
4
Hissi
Kyllä
Taloyhtiössä on sauna
Ei
Energiatodistus
Ei lain edellyttämää energiatodistusta
Lisätietoja lämmityksestä
K

Tilat ja materiaalit

Pysäköintitilan kuvaus
Ei