200 € / kk16 m²

Tammiston Kaupppatie 6, Tammisto, Vantaa7h + kk

Vuokra/kk
200 € / kk
Pinta-ala
16 m²
Huoneita
7
Kerros
2 / 2
Rakennusvuosi
1988
Toimitilan tyyppi
Toimistotila
Kaupunginosa
Tammisto
Kaupunki
Vantaa

Vuokrataan Tammiston keskeisimmältä paikalta edullista ja monipuolista toimitilaa

Kohde sijaitsee vilkkaan Tammiston kauppatien varrella. Kohteen näkyvyys ja saavutettavuus on erinomainen.

Tilat soveltuvat hyvin erikokoisille yrityksille ja tarvittaessa jaettavaksi usean toimijan kesken. Kysy myös mikäli kaipaat varastointimahdollisuuksia.

Kiinteistöltä löytyy runsaasti pysäköintipaikkoja, bussipysäkit sijaitsevat aivan kiinteistön läheisyydessä ja polkupyörällä on erittäin helppoa saapua kohteeseen.

Kävelymatkan etäisyydeltä löytyy useampia lounasravintolavaihtoehtoja sekä laajat päivittäistavara- ja kuluttajakauppavalikoimat oheispalveluineen.

Tilasta löytyy WC-tilat ja keittokomero.

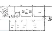
Vuokrattavat tilat sijaitsevat rakennuksen 2. kerroksessa (ei hissiä).

Vapaana olevat huoneet: 1-2 hengen huoneet: 15,5 m2 toimistohuone, huonevuokra 295€/kk, 3kpl

3-5 hengen huone: 30 m2 toimistohuone, huonevuokra 530€/kk, 1kpl

4-7 hengen huoneet: 40 m2 toimistohuone (vain kattoikkunat), huonevuokra 510€/kk, 1kpl 45,5m2 toimistohuone vuokra 690€/kk, 1kpl

Varastohuone: 16 m2 varastohuone, huonevuokra 200€/kk, 1kpl

Koko tilakokonaisuus on laajuudeltaan noin 260m2 ja vuokra 2700€/kk.

Soita rohkeasti ja kysy lisää, niin katsotaan sinulle sopiva tilantarve.

Perustiedot

Kaupunginosa
Tammisto
Kohdenumero
21790595
Kerros
2 / 2
Toimitilan tyyppi
Toimistotila
Tilan pinta-ala
16 m²
Kokonaispinta-ala
260 m²
Pinta-alojen lisätiedot
Kokonaisuus noin 260 m2. Huoneiden koot 15,5 m2- 45,5 m2.
Huoneiston kokoonpano
7h + kk
Huoneita
7
Kunto
Hyvä
Kunnon lisätiedot
Perussiistit pinnat
Lisätietoa vapautumisesta
Heti vapaa.
Keittiö
Keittokomero
Parveke
Ei
Muut ehdot
Tupakointi kielletty, sisällä

Hinta

Vuokra/kk
200 € / kk
Lisätietoa vakuudesta
Sovitaan erikseen
Vuokrauksen erityisehdot
Tilat ovat arvonlisäverollisessa käytössä. Vuokraan ja muihin mahdollisiin erilliskorvauksiin lisätään kulloinkin voimassa oleva arvonlisävero. Mikäli haluat vuokrata tilaa esimerkiksi yksityishenkilönä, soita ja kysy lisää.

Muut maksut

Lämmityskustannukset
Sisältyy vuokraan.
Vesimaksun lisätiedot
Sisältyy vuokraan.
Sähkömaksu
Sovitaan erikseen tulevan käytön mukaan.

Talon ja tontin tiedot

Rakennuksen tyyppi
Toimistotila
Rakennusvuosi
1988
Kerroksia
2
Kattomateriaali
Bitumikermi
Ilmanvaihto
Koneellinen, lämmön talteenotolla
Harrastusmahdollisuudet
Kuntosali lähellä
Liikenneyhteydet
Bussipysäkki lähellä, Sujuvat yhteydet omalla autolla, Paljon parkkitilaa, Maksuton pysäköinti
Lämmönjakelu
Sähköpatterilämmitys
Rungon rakennustapa
Elementti