2 914 m²

Muuntotie 3, Pakkala, Vantaa

Vapautuu
Heti vapaa
Pinta-ala
2 914 m²
Toimitilan tyyppi
Varastotila
Kaupunginosa
Pakkala
Kaupunki
Vantaa

Muuntotie 3

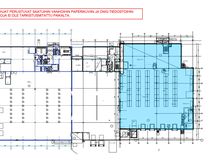
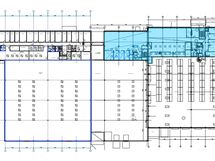
Vuorattavana Vantaan Tammistossa 1. kerroksessa 2.085 m2 hyvää, pääosin 6,8 m2 korkeaa varastotilaa ja siihen liittyvä, 2. kerroksen saneerattu toimistotila. Varastossa useita lastaustaskuja ja sisäänajomahdollisuus. Suuri piha-alue, jossa rekoille riittävästi tilaa kääntyä. Kiinteistö sijaitsee logistisesti hyvällä paikalla Tuusulan väylän ja Kehä III:n kupeessa. Tammiston ja Jumbon monipuoliset palvelut kiinteistön tuntumassa.

Perustiedot

Sijainti
Muuntotie 3, 01510 Vantaa
Kaupunginosa
Pakkala
Toimitilan tyyppi
Varastotila
Tilan pinta-ala
2 914 m²
Vapautuu
Heti vapaa
Postitoimipaikka
Vantaa

Hinta

Vuokra/kk

Talon ja tontin tiedot

Rakennuksen tyyppi
Varastotila
Energialuokka
N/A