210 m²

Peltolantie 2, Tikkurila, Vantaa

Pinta-ala
210 m²
Toimitilan tyyppi
Liiketila
Kaupunginosa
Tikkurila
Kaupunki
Vantaa

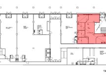
Tikkurilassa vuokrattavana katutason liiketila 210 m2. Tilat on mahdollista vuokrata yhdessä. Vuokrattavissa myös autopaikkoja.

Kohde sijaitsee erinomaisella paikalla lähellä Tikkurilan palveluita ja juna-asemaa.

Lisätietoja numerosta 020 7290 710. Lisää kohteita osoitteessa www.premises.fi.

Kohteella ei ole lain edellyttämää energiatodistusta tai energialuokka ei tiedossa.

Perustiedot

Sijainti
Peltolantie 2, 01300 Vantaa
Kaupunginosa
Tikkurila
Toimitilan tyyppi
Liiketila
Tilan pinta-ala
210 m²
Kokonaispinta-ala
210 m²
Tiedustelut
Ota yhteyttä 020 7290 710 tai asiakaspalvelu@premises.fi
Postitoimipaikka
Vantaa
Linkit

Hinta

Vuokra/kk

Talon ja tontin tiedot

Uudiskohde
Ei
Rakennuksen tyyppi
Liiketila