240 m² - 1 550 m²

Porttikaari 2, Kuninkaala, Vantaa

Pinta-ala
240 m² - 1 550 m²
Toimitilan tyyppi
Liiketila
Kaupunginosa
Kuninkaala
Kaupunki
Vantaa

Porttikaari 2, Vantaa – 3 250 m² myymälä-/varastotilaa + autohalli, erinomainen sijainti

Porttikaari 2, Vantaa – 3 250 m² myymälä-/varastotilaa + autohalli, erinomainen sijainti

Porttikaari 2 on vuonna 2005 valmistunut, edustava liikekiinteistö Vantaan Porttipuistossa – yhdessä pääkaupunkiseudun vahvimmista retail- ja ison koon myymäläkeskittymistä. Kokonaisvuokrattava ala on noin 3 250 m², johon sisältyy 1. kerroksen korkeaa myymälä-/näyttelytilaa, varastoja sekä pohjakerroksen autohalli. Kohteessa on sekä henkilö- että tavarahissi, mikä sujuvoittaa arjen logistiikkaa. Pihassa ja hallissa on yhteensä 38 autopaikkaa.

Sijainti Porttipuiston palveluiden keskellä tuo asiakasvirtaa: naapurustossa mm. IKEA, Helsinki Outlet, Tokmanni, Puuilo, Asko, Unikulma, S-Market ja McDonald’s. Lisäksi Vantaan raitiotien linjaus ja pysäkki ovat suunnitteilla alueelle.

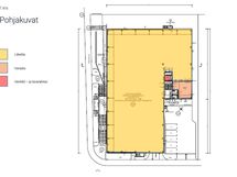
Tilajako (ohjeellinen)

Kokonaisala: n. 3 250 m².

1. kerros

Lämmin huoneala n. 1 550 m² (vapaa korkeus 6–8 m) + varasto n. 80 m².

Pohjakerros

Autohalli n. 1 200 m² (32 autopaikkaa)

Varasto n. 150 m²

Sosiaalitilat n. 258 m²

Kiinteistövarasto n. 12 m².

Tekniset tiedot ja varustelu

Lämmitys: kaukolämpö.

Ilmanvaihto: koneellinen LTO.

Rakenteet: seinä- ja kattorakenteet betonia, välipohjat ontelolaattaa; julkisivu lasi/tiili/Paroc-elementti; katemateriaali huopa.

1. kerroksen vapaa korkeus 6–8 m; pohjakerroksen huonekorkeus n. 2,5 m, kantavuus 5,0 kN/m².

Henkilö- ja tavarahissi.

Pihan pinnoitteet: asfaltti ja kivetys.

Pysäköinti

Yhteensä 38 autopaikkaa: hallissa 33, pihalla 5. Pohjakerroksen hallissa 32 merkittyä autopaikkaa.

Sijainti ja palvelut

Porttipuisto on helposti saavutettavissa Kehä III:n ja Lahdenväylän kautta. Lähialueen ankkurit (mm. IKEA, Helsinki Outlet, Tokmanni, Puuilo, Asko, Unikulma, S-Market, McDonald’s) vahvistavat asiakasvirtoja ja logistiikkaa. Vantaan raitiotien linjaus ja pysäkki on esitetty alueelle.

Perustiedot

Sijainti
Porttikaari 2, 01200 Vantaa
Kaupunginosa
Kuninkaala
Toimitilan tyyppi
Liiketila
Joustava pinta-ala
240 m² - 1 550 m²
Postitoimipaikka
Vantaa

Hinta

Vuokra/kk

Talon ja tontin tiedot

Rakennuksen tyyppi
Liiketila
Energialuokka
N/A