165 m²

Silkkitehtaantie 5, Tikkurila, Vantaa

Pinta-ala
165 m²
Kerros
1
Toimitilan tyyppi
Toimistotila
Kaupunginosa
Tikkurila
Kaupunki
Vantaa

Silkkitehtaantie 5

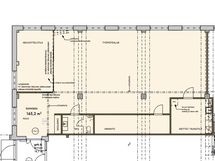
165 m² kokoinen toimistotila Tikkurilan vanhalla tehdasalueella Silkin Konttorissa. Tila koostuu avotilasta, neuvotteluhuoneesta, työhuoneesta keittiöstä ja wc-tilasta. Tila sijaitsee katutasossa.

Perustiedot

Kaupunginosa
Tikkurila
Kerros
1
Toimitilan tyyppi
Toimistotila
Tilan pinta-ala
165 m²

Hinta

Vuokra/kk

Talon ja tontin tiedot

Rakennuksen tyyppi
Toimistotila
Energialuokka
B